Bebauungsplan Nr. 041„Am Leiermann-Stechgraben“
Bebauungsplan Nr. 041„Am Leiermann-Stechgraben“, rechtskräftig seit dem 19.09.2025

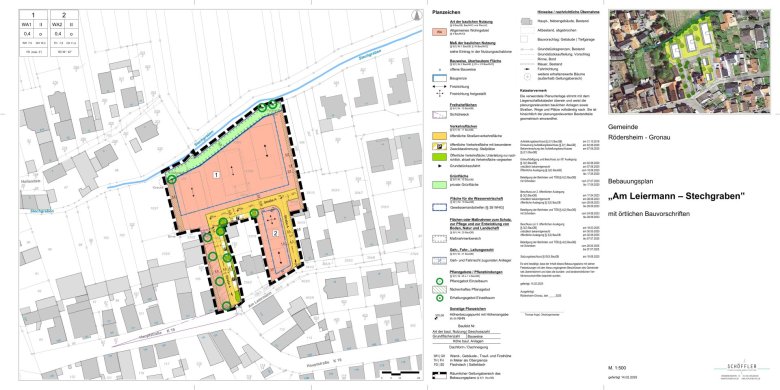
- Bebauungsplan Nr. 041 „Am Leiermann-Stechgraben“, Planzeichnung
- Bebauungsplan Nr. 041 „Am Leiermann-Stechgraben, Textteil mit Begründung
(Aktualisiert am 19.09.2025)